Котел газовый Очаг КСГ-7 С автоматика САБК (Россия) серия Стандарт СервисГаз
- Обзор
- Характеристики
- Отзывы0
Напольный газовый котел Очаг КСГ 7 С – САБК серии Стандарт от российского производителя СервисГаз является одноконтурным отопительным аппаратом, основное назначение которого заключается в отоплении частных домовладений, квартир в домах, а так же разного рода построек. При разработке аппарата Очаг КСГ была принята во внимание специфика российских газопроводов, а именно низкое давление поступающего газа. Котел Очаг полностью энергонезависим и способен работать в системах отопления закрытого и открытого типа с рабочим давлением до 2 атм. Циркуляция теплоносителя возможна как принудительная от насоса, так и естественная методом самотека, причем возможно комбинировать оба способа в осной системе отопления. Маркировка котлов Очаг достаточно проста, рядом с аббревиатурой КСГ (котел стальной газовый) стоит цифра, указывающая мощность аппарата в кВт, после которой указывается тип автоматики: С – САБК (Россия).
Котел Очаг КСГ Сервисгаз имеет основные части:
- Корпус газового аппарата
- Автоматика управления
- Теплообменник
- Второй контур (если котел двухконтурный)
- Система безопасности
Преимущества газового стального котла "Очаг" Стандарт
- Умеренное газопотребление. Производитель предусмотрел в конструкции котла устройство стабилизации – для выравнивания давления топлива. При помощи стабилизатора, потребление газа и уменьшается на 30%.
- Защита при работе аппарата обеспечивается системой безопасности, которая автоматически отключит котел при: недостаточной или полном отсутствие тяги в дымоходе, угасании пламени горелки, перекрытии газа на магистрали, а устройство контроля перегревания теплоносителя защитит от преждевременного износа теплообменника.
- Энергонезависимый. Очаг является автономным котлом и для работы ему не нужно никаких внешних источников электроэнергии.
- Строгий, но в то же время современный внешний вид, который отлично вписывается в современные интерьеры квартир и домов не выделяясь относительно другой техники в доме.
- Точное выставление температуры.
- Наивысший КПД 92 % в своем классе по средствам модернизации устройства жаро-трубного теплообменника, который сделан из качественной стали толщиной до 3 мм и полностью соответствует российскому ГОСТу.
- Отлично работает в закрытых системах отопления с рабочим давлением до 2 атм.
- Укомплектован надежным газовым блоком автоматики САБК (САБК-АТ) российского производства.
- Оборудован термометром - указателем температуры в отопительном контуре, который показывает температуру теплоносителя.
- Особенное присоединение дымосборника обеспечивает простой и удобный монтаж и сервисные работы для дымоходной части аппарата.
- Существует так же возможность работы аппарата на сжиженном газе, при смене жиклеров горелки возможен и осуществима опционально.
- Котлы Очаг так же удобны для пользователя так как, проложить газовую подводку возможно с обоих сторон аппарата, перенавешиваемая дверка с открытием как вправо так и влево, быстросъемная верхняя крышка
- Горелка (горелочное устройство) смонтировано на легко отсоединяемом креплении для упрощения чистки и обслуживания.
- Сама горелка выполнена из жаропрочной стали - нержавейки с очень экономным потреблением газа.
- Качественная сборка. Многоуровневый контроль качества.
- Срок эксплуатации 15 лет, заводская гарантия 60 месяцев.
Конструкция КСГ Очаг с автоматикой САБК
В корпус газового аппарата с нижней стороны, установлена топка или топочная камера, секции отопительной рубашки расположены сбоку и сзади аппарата. Сверху над топкой располагается теплообменник. Высокая эффективность теплопередачи и тепло обмена между отходящими угарными газами и теплоносителем, достигается за счет прогрессивной конвективной части теплообменника, которая состоит из жаровых труб.
Сверху теплообменника установлен дымосборник со встроенным стабилизатором тяги. В передней части дымосборника расположен датчик тяги, в верхней части дымосборника, расположен выходной патрубок котла.
Теплообменник, в комплекте с дымосборником обеспечивает стабильную работу котла без участия потребителя, и не требует никаких ручных регулировок. В топочную камеру аппарата установлено газогорелочное устройство, которое состоит из фасадной панели, горелочных труб, датчиков безопасности (датчик пламени и датчик тяги), и системы управления САБК. Под трубами расположена заслонка решетчатая, помогающая подавать вторичный воздух на горелку.

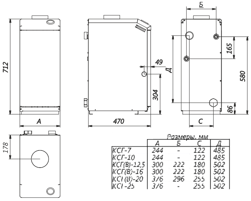
Габариты и присоединительные размеры отопительных аппаратов ОЧАГ Стандарт КСГ


Видео-обзор устройства и преимуществ котла стального газового ОЧАГ КСГ (КСГВ) Стандарт
| Производитель | Сервисгаз |
| Цвет | белый |
| Давление газа на входе в котел | 13 мбар |
| Диаметр дымохода | 100 мм |
| Гарантия | 36 мес |
| Глубина | 470 мм |
| Коэффициент полезного действия | 92% |
| Количество теплообменников | 1 шт. |
| Максимальная температура в режиме отопления | 95 град. |
| Максимальное рабочее давление системы отопления | 2 бар |
| Материал теплообменника | Сталь |
| Минимальная температура в режиме отопления | 40 град. |
| Мощность номинальная | 7 кВт |
| Назначение | одноконтурный |
| Объем воды в котле | 20,4 л |
| Отапливаемая площадь, м2 | до 80 |
| Подключение газа | 1/2 |
| Расход газового топлива | 0,5 куб. м / час |
| Ширина | 244 мм |
| Состояние | Новое |
| Способ отвода отработанных газов | Дымоход |
| Способ установки | Напольный |
| Страна | Россия |
| Теплоноситель | Вода |
| Тип котла по полноте использования энергии топлива | Конвекционные |
| Тип топки | Открытая |
| Вид топлива | Газообразное |
| Вход в систему отопления | 1 1 / 2 |
| Возврат из системы отопления | 1 1 / 2 |
| Высота | 712 мм |
| Вес | 38 кг |
Котел газовый Очаг КСГ-7 С автоматика САБК (Россия) серия Стандарт СервисГаз отзывы
Советуем Вам купить Котел газовый Очаг КСГ-7 С автоматика САБК (Россия) серия Стандарт СервисГаз по низкой цене 19 000 руб., для обустройства системы отопления или водоснабжения в вашем доме. Котел газовый Очаг КСГ-7 С автоматика САБК (Россия) серия Стандарт СервисГаз купить на выгодных условиях в Воронеже и по выгодным ценам от интернет-магазина «ТермоТехника».
Производитель гарантирует высокое качество и соответствие мировым стандартам для всей своей продукции, а так же предоставляет расширенную гарантию изготовителя, осуществляемую через огромную сеть сервисных центров.
Купить через заказ на сайте интернет-магазина «ТермоТехника» или форму «Быстрый заказ». Заказ оформить достаточно легко, необходимо выбрать интересующие товары и в каждом кликнуть на форму «купить», далее перейти в корзину, проверить правильность выбора и перейти к оформлению способа оплаты и доставки.
Форма «Быстрый заказ» или заказ обратного звонка позволяет в два клика обозначить вашу потребность, а оперативно связавшийся с вами менеджер нашего магазина подскажет по всем нюансам выбора товара, предложит аналоги по более выгодным ценам и по вашим предпочтениям, а так же обозначит доступные варианты оплаты и доставки для конкретного товара и тем самым полностью доведет процедуру оформления заказа.
Оформить заказ на такую продукцию как, Котел газовый Очаг КСГ-7 С автоматика САБК (Россия) серия Стандарт СервисГаз с выгодными условиями получения в Воронеже, а так же с быстрой доставкой по всей России.




